reelly_69ddecd4df077

Binghatti Titania

Binghatti Titania stands as a striking landmark in

iconImage

Layer copy 688,999

Launch Price
iconImage

OFF-PLAN

Project Nature

Bedrooms

studio, 1, 2

Type

AP
AP

Handover

Q1 2027

Area

369 to 1.2K sqft

Down Payment

70%

Service Charges

Layer copy 12

Contact Project Specialist

I accept the terms of the User Agreement and Privacy Policy.

Binghatti Titania Overview

Binghatti Titania stands as a striking landmark in the heart of Majan, offering a collection of beautifully designed studio, 1 and 2 bedroom apartments that blend elegance with comfort. Its bold illuminated façade and refined geometry create a distinctive architectural statement, reflecting Binghatti’s renowned approach to modern sophistication. Every detail of the tower has been crafted to deliver a living experience that is both inspiring and effortlessly luxurious. Residents are welcomed into thoughtfully designed spaces enhanced by premium finishes, smart layouts, and abundant natural light. The interiors combine comfort and style, creating a calm retreat from the fast-paced city life. Each apartment reflects a perfect harmony of beauty and practicality, making it an ideal choice for those who appreciate quality

Binghatti

Binghatti Titania Amenities

Gym

Gym

Swimming Pool

Swimming Pool

Kids' Play Area & Pool

Kids' Play Area & Pool

Sunken Seat Area

Sunken Seat Area

We welcome various payment methods.

Diverse payment options for your convenience.

Bitcoins

Bank Transfer

Credit Card

Cheques

Binghatti Titania Payment Plans

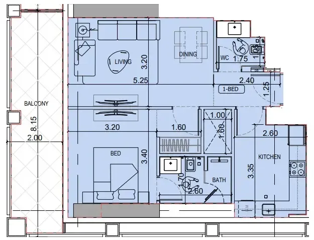
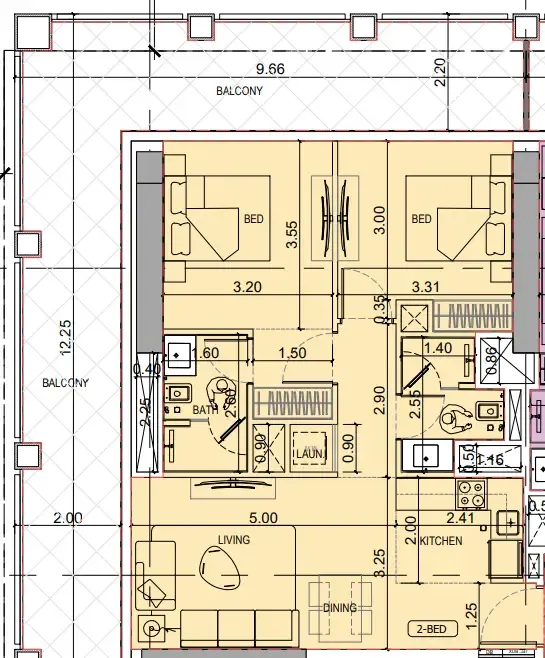
Binghatti Titania Floor Plans

Studio apartments - Binghatti Titania

Explanation
Studio

Please choose unit type:

Studio apartments - Binghatti Titania

1 Bedroom apartments - Binghatti Titania

2 Bedrooms apartments - Binghatti Titania

Floor Plans Location Project Name Bedrooms Type Property Type Property Size Service Charges
Majan Binghatti Titania studio AP Studio apartments - Binghatti Titania 365 sqft Layer copy 12 / sqft

Layer copy 4,385

Majan Binghatti Titania 1 Bed AP 1 Bedroom apartments - Binghatti Titania 674 sqft Layer copy 12 / sqft

Layer copy 8,085

Majan Binghatti Titania 2 Beds AP 2 Bedrooms apartments - Binghatti Titania 1,198 sqft Layer copy 12 / sqft

Layer copy 14,371

Description

Binghatti Titania stands as a striking landmark in the heart of Majan, offering a collection of beautifully designed studio, 1 and 2 bedroom apartments that blend elegance with comfort. Its bold illuminated façade and refined geometry create a distinctive architectural statement, reflecting Binghatti’s renowned approach to modern sophistication. Every detail of the tower has been crafted to deliver a living experience that is both inspiring and effortlessly luxurious.

Residents are welcomed into thoughtfully designed spaces enhanced by premium finishes, smart layouts, and abundant natural light. The interiors combine comfort and style, creating a calm retreat from the fast-paced city life. Each apartment reflects a perfect harmony of beauty and practicality, making it an ideal choice for those who appreciate quality and refinement.

Binghatti Titania offers an array of lifestyle amenities that elevate daily living to new heights. Residents can enjoy an indoor gym for active well-being, a refreshing adults pool and a dedicated kids pool for family relaxation, as well as a sunken seat area ideal for social gatherings and peaceful moments. Surrounded by convenience and designed with care, Binghatti Titania captures the essence of contemporary urban living with elegance and grace.

Finishing and materials

Modern finishing with high quality materials and Smart Home System.

Kitchen and appliances

Equipped kitchens.

Furnishing

No.

Location description and benefits

Majan is a 1.5 million square meter district in Dubai. It is located at the heart of the large Dubailand community. Majan is a perfect place for those who are looking for a buy-to-invest property. While the community is developing, apartment prices have not yet reached their maximum values. If you want to purchase an off-plan housing unit, you can count on a good discount.

With Sheikh Mohammed Bin Zayed Road at its front, Majan lies in close proximity to Al Ain Road. These roads provide Majan strategic access to Al Ain, Sharjah and Abu Dhabi. The area comprises 100 residential complexes, six iconic towers, four hotels and mixed-use units.

The main advantage of Majan is its proximity to high-ranked schools, business and shopping centers, medical facilities, major amusement parks, and sports facilities. While the community boasts its excellent location and good infrastructure, rental rates are not as high as in the seashore or central parts of the emirate. Affordable prices attract locals and tourists who want to rent an apartment in a good area at an affordable price.

Binghatti Titania Master plan

Binghatti Titania stands as a striking landmark in the heart of Majan, offering a collection of beautifully designed studio, 1 and 2 bedroom apartments that blend elegance with comfort. Its bold illuminated façade and refined geometry create a distinctive architectural statement, reflecting Binghatti’s renowned approach to modern sophistication. Every detail of the tower has been crafted to deliver a living experience that is both inspiring and effortlessly luxurious. Residents are welcomed into thoughtfully designed spaces

Vincitore Wellness Estate

Divine Al Barari

Binghatti Vintage

Paradise View II

Barari Palace

Barari Gate by ADE

Binghatti Titania Video

Binghatti Titania stands as a striking landmark in the heart of Majan, offering a collection of beautifully designed studio, 1 and 2 bedroom apartments that blend elegance with comfort. Its bold illuminated façade and refined geometry create a distinctive architectural statement, reflecting Binghatti’s renowned approach to modern sophistication. Every detail of the tower has been crafted to deliver a living

Binghatti Titania Location

Similar Projects

Submit an Inquiry

I accept the terms of the User Agreement and Privacy Policy.
Project CTA Image

Developed by :

reelly_69c23b9981009