reelly_69d6b23536d78

Golden Woods Albab Views

Golden Woods Albab Views presents a contemporary architectural

iconImage

Layer copy 1,026,600

Launch Price
iconImage

OFF-PLAN

Project Nature

Bedrooms

studio, 1, 2

Type

AP
AP

Handover

Q4 2027

Area

782 to 1.1K sqft

Down Payment

20%

Service Charges

Layer copy 14

Contact Project Specialist

I accept the terms of the User Agreement and Privacy Policy.

Golden Woods Albab Views Overview

Golden Woods Albab Views presents a contemporary architectural concept designed to offer comfort, functionality, and elegant simplicity within Dubai South’s rapidly developing community. The low-rise structure, composed of a ground level plus four residential floors, reflects modern urban aesthetics with clean lines, balanced proportions, and thoughtful integration of outdoor spaces. Positioned in a major growth corridor, the development benefits from exceptional connectivity to Expo City, Al Maktoum International Airport, and Dubai’s key destinations, offering residents both convenience and a future-ready living environment. The project features a selection of studios, one-bedroom, and two-bedroom residences, each crafted to balance modern elegance with everyday practicality. Spacious layouts, smart interior planning, and premium finishing enhance comfort while maintaining a refined, contemporary style. These homes

Golden Woods

Golden Woods Albab Views Amenities

Fully Equipped Gymnasium

Fully Equipped Gymnasium

Kids Pool

Kids Pool

Swimming Pool

Swimming Pool

Jacuzzi

Jacuzzi

Poolside Barbeque Area

Poolside Barbeque Area

Scenic Jogging Track

Scenic Jogging Track

Multi Purpose Hall

Multi Purpose Hall

Multiple Serene Garden & Shaded Family Lounge

Multiple Serene Garden & Shaded Family Lounge

Shaded Tranquility Yoga Corner

Shaded Tranquility Yoga Corner

Outdoor Kids Play Area

Outdoor Kids Play Area

Shaded Mini Golf Corner

Shaded Mini Golf Corner

Shaded Courtyard Seating Area

Shaded Courtyard Seating Area

We welcome various payment methods.

Diverse payment options for your convenience.

Bitcoins

Bank Transfer

Credit Card

Cheques

Golden Woods Albab Views Payment Plans

Golden Woods Albab Views Floor Plans

Studio apartments - Golden Woods Albab Views

Explanation
Studio

Please choose unit type:

Studio apartments - Golden Woods Albab Views

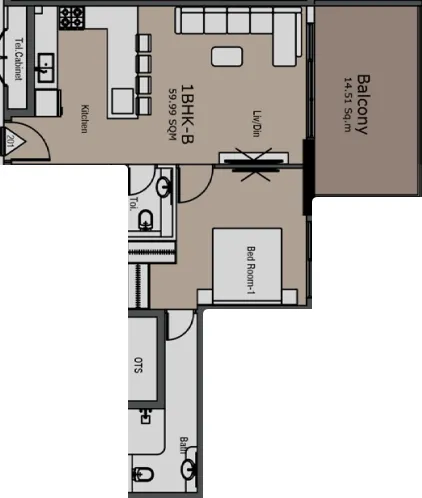
1 Bedroom apartments - Golden Woods Albab Views

2 Bedrooms apartments - Golden Woods Albab Views

Floor Plans Location Project Name Bedrooms Type Property Type Property Size Service Charges
Dubai South Golden Woods Albab Views studio AP Studio apartments - Golden Woods Albab Views 332 sqft Layer copy 14 / sqft

Layer copy 4,641

Dubai South Golden Woods Albab Views 1 Bed AP 1 Bedroom apartments - Golden Woods Albab Views 782 sqft Layer copy 14 / sqft

Layer copy 10,948

Dubai South Golden Woods Albab Views 2 Beds AP 2 Bedrooms apartments - Golden Woods Albab Views 842 sqft Layer copy 14 / sqft

Layer copy 11,781

Description

Golden Woods Albab Views presents a contemporary architectural concept designed to offer comfort, functionality, and elegant simplicity within Dubai South’s rapidly developing community. The low-rise structure, composed of a ground level plus four residential floors, reflects modern urban aesthetics with clean lines, balanced proportions, and thoughtful integration of outdoor spaces. Positioned in a major growth corridor, the development benefits from exceptional connectivity to Expo City, Al Maktoum International Airport, and Dubai’s key destinations, offering residents both convenience and a future-ready living environment.

The project features a selection of studios, one-bedroom, and two-bedroom residences, each crafted to balance modern elegance with everyday practicality. Spacious layouts, smart interior planning, and premium finishing enhance comfort while maintaining a refined, contemporary style. These homes cater to individuals and families seeking an accessible, well-designed residential option within a dynamic and expanding district known for long-term value and strong demand.

A wide range of amenities enriches daily living, including a fully equipped gymnasium, adults’ pool, kids’ pool, jacuzzi, poolside terrace, barbeque area, male and female changing rooms, outdoor kids’ play area, multi-purpose hall, scenic jogging track, multiple landscaped gardens, shaded lounge areas, pergola seating, mini golf corner, family seating zones, and yoga spaces. With amenities available on both the ground floor and rooftop, residents enjoy a lifestyle shaped by wellness, leisure, and community-focused experiences.

The development incorporates premium finishing and quality materials to ensure durability, comfort, and a polished contemporary look. Although specific appliance brands are not included, the interiors are designed around modern standards, clean aesthetics, and efficient use of space. Energy-efficient systems support an eco-friendly lifestyle, providing residents with a stable, future-oriented home environment.

Location description and benefits

Dubai South - is a dynamic and strategically planned district located in the southern part of Dubai. It serves as a major hub for economic, commercial, and logistical activities, designed with a vision to support the growth of various industries. One of its standout features is its proximity to the Al Maktoum International Airport, the world's largest airport in terms of cargo volume, making it a key player in the global logistics and aviation sectors.

In addition to its logistical prowess, Dubai South is home to the Dubai Expo 2020 site, which served as a testament to the district's capacity to host large-scale global events. The Expo site has now transitioned into a legacy district, offering a wide range of amenities and infrastructure, including residential communities, educational institutions, and recreational facilities. Dubai South's commitment to sustainability is evident in its green initiatives, with a focus on eco-friendly urban planning and energy-efficient buildings.

Dubai South continues to grow as a thriving business and residential hub, attracting both international and local investors. Its strategic location, state-of-the-art infrastructure, and diverse range of opportunities make it a compelling destination for businesses and individuals alike, contributing to the ongoing development and economic diversification of Dubai.

Golden Woods Albab Views Master plan

Golden Woods Albab Views presents a contemporary architectural concept designed to offer comfort, functionality, and elegant simplicity within Dubai South’s rapidly developing community. The low-rise structure, composed of a ground level plus four residential floors, reflects modern urban aesthetics with clean lines, balanced proportions, and thoughtful integration of outdoor spaces. Positioned in a major growth corridor, the development benefits from exceptional connectivity to Expo City, Al Maktoum International Airport, and Dubai’s key destinations, offering residents

Divine Elements

Miorah by Zoya

Avion Residence

Regal Crest

Enre Residence by Imtiaz

Cresswell Plaza

Golden Woods Albab Views Video

Golden Woods Albab Views presents a contemporary architectural concept designed to offer comfort, functionality, and elegant simplicity within Dubai South’s rapidly developing community. The low-rise structure, composed of a ground level plus four residential floors, reflects modern urban aesthetics with clean lines, balanced proportions, and thoughtful integration of outdoor spaces. Positioned in a major growth corridor, the development benefits from

Golden Woods Albab Views Location

Similar Projects

Submit an Inquiry

I accept the terms of the User Agreement and Privacy Policy.
Project CTA Image

Developed by :

reelly_69d6b230eee7b